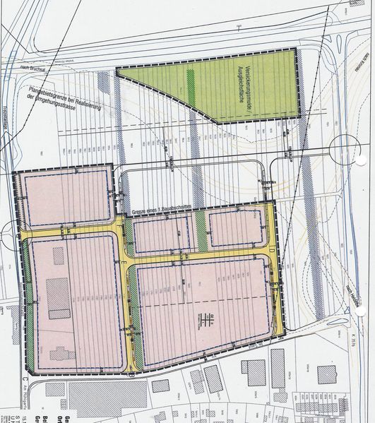
Neues Gewerbegebiet „Im Sand“
Die SPD
-Fraktion stimmte der Aufstellung des Gewerbegebiets „Im Sand“ in Langenbrücken zu.
Es ist seit 25 Jahren das erste neue Gewerbegebiet.
Damit macht die Gemeinde einen kleinen Schritt in Richtung Stärkung der Gemeindefinanzen und Arbeitsplatzbeschaffung. Je mehr Arbeits-plätze im Ort sind, umso weniger Auspendler fahren morgens und abends durch unsere Straßen. Die Ausweisung von Gewerbegebieten führt also auch zur Reduzierung des innerörtlichen Verkehrs.
Weh tat uns dabei, dass eine fast ebenso große Fläche nicht als Gewerbegebiet ausgewiesen werden konnte, da auf ihr die Freihaltetrasse für die Neuplanung der unsicheren K3575 liegt.
Hier zeigt sich ein weiteres Mal die negative Auswirkung dieser in immer weitere Ferne rückende Umgehung für die Gemeinde.
Verpflegungsbeiträge der Mensa in der Michael-Ende-Schule neu festgelegt
Auf Antrag der SPD kam das Thema Verpflegungsbeitrag erneut auf der Tagesordnung des Gemeinderats.
Unser Antrag konnte erst jetzt behandelt werden, da nach der letzten Beschlussfassung 3 Monate und neue Erkenntnisse abgewartet werden mussten.
Die neuen Erkenntnisse ergaben sich zum einen durch eine rückläufige Auslastung der Mensa und durch ein neues Abrechnungssystem.
Nun wird kein Monatsbeitrag mehr erhoben, sondern jedes Essen separat abgerechnet.
Dies führt zu einer wesentlich flexibleren Nutzung seitens der Kinder und deren Eltern.
Es gibt auch dem Caterer Anreize, Essen zu liefern, das bei den Kindern ankommt.
Der neu kalkulierte Essenspreis von 4,90 €/Essen deckt zwar immer noch nicht die Kosten der Gemeinde, erscheint uns aber ein akzeptabler Kompromiss zwischen der Kostendeckung seitens der Gemeinde und der Finanzierbarkeit durch die Eltern.
Wir hoffen, dass durch diese Neuregelung die Inanspruchnahme des Mensaessens wieder zunimmt und damit der Preis stabilisiert werden kann.
HS


