der Ortschaftsrat von Untergrombach hat in seiner letzten Sitzung über das Thema Unterbringung von Flüchtlingen in der Stadt Bruchsal beraten. Dabei ging es um die Frage der gerechten Verteilung der Flüchtlinge in der Gesamtstadt und wo in Untergrombach eine Gemeinschaftsunterkunft für Asylbewerber erstellt werden kann.
In Bruchsal waren in den letzten Monaten gleichzeitig bis zu 1.000 Asylbewerber in Gemeinschaftsunterkünften untergebracht. Derzeit stellt sich die Situation wie folgt dar: Heidelsheim: (Praktiker) ca. 350 Personen, Büchenau: 45 Personen, Bruchsal Schnabel-Henning-Straße: 140 Personen, Bruchsal, Grabener Straße: 250 Personen, Bruchsal Eisenbahnstraße: 250 Personen. In Untergrombach gibt es bisher noch keine Gemeinschaftsunterkunft für Asylbewerber. Besonders in Heidelsheim (Praktiker) und in der GU Grabener Straße in Bruchsal handelt es sich um reine Notunterkünfte, die schnellstens wieder aufgelöst werden sollten, weil die Menschen dort unter erbarmungswürdigen Umständen leben müssen. Der Landkreis Karlsruhe sucht inzwischen überall im Landkreis nach Flächen, auf denen dauerhafte Gemeinschaftsunterkünfte erstellt werden können. Hierzu sind auf der Gemarkung der Stadt Bruchsal jetzt die beiden Standorte „Fuchsloch-West“ in Bruchsal und „Walkartswiesen“ in Untergrombach vorgeschlagen worden.
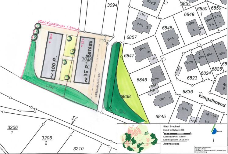
Der Ortschaftsrat hat nun in seiner letzten Sitzung dem Standort Walkartswiesen, an der Kreisstraße nach Büchenau, mit großer Mehrheit (10 : 2 Stimmen) für eine weitere Ausarbeitung zugestimmt. Eine Gemeinschaftsunterkunft „Walkarstswiesen“, westlich der bestehenden Bebauung (an der Kreisstraße nach Büchenau) soll maximal 175 Personen beherbergen. Der Regionalverband weist für diese Fläche einen regionalen Grünzug aus, der laut Regionalverband Mittlerer Oberrhein ausnahmsweise für eine befristete Flüchtlingsunterkunft genutzt werden könnte. Da sich das betreffende Gelände in Kirchenbesitz befindet, wird es notwendig sein, dass zwischen der kath. Kirche und dem Landkreis Karlsruhe ein entsprechender Pachtvertrag geschlossen wird. Für den Standort ist auch noch ein regionalplanerischer Vertrag erforderlich. Ebenso muss noch geprüft werden ob eine Genehmigung des Bauvorhabens nach dem neu gefassten § 246 BauGB möglich ist, oder ob ein vorhabenbezogener Bebauungsplan notwendig wird.
Ich wiederhole hier noch einmal, was ich im Januar dieses Jahres beim Neujahrsempfang der Untergrombacher Vereine zum Thema Flüchtlinge gesagt habe: „Sicherlich wird das Thema der Unterbringung von Flüchtlingen im kommenden Jahr auch für Untergrombach ein aktuelles Thema werden. Im Gemeinderat und im Ortschaftsrat haben wir bereits darüber gesprochen. Weltweit sind Millionen Menschen auf der Flucht vor Verfolgung, Elend, Hunger und Krieg. Für uns alle ist es eine große humanitäre Aufgabe diesen Menschen zu helfen, die in ihrer Not zu uns kommen. Und in unserer Stadt kann dies am besten gelingen, wenn möglichst viele mithelfen, und diese Aufgabe auf viele Schultern verteilt wird. Das heißt, dass auch jeder Stadtteil seinen Beitrag leistet und Flüchtlinge aufnimmt. Deshalb halte ich es für selbstverständlich, dass in absehbarer Zeit auch Flüchtlinge nach Untergrombach kommen und hier untergebracht werden.
"Wir sollten uns dann alle gastfreundlich und hilfsbereit zeigen.“
Karl Mangei (Ortsvorsteher)



